
"Listen to the musn'ts child,
Listen to the don'ts.
Listen to the shouldn'ts,
the impossibles, the won'ts.
Listen to the never haves,
then listen close to me -
Anything can happen child,
Anything can be."
- Shel Silverstein
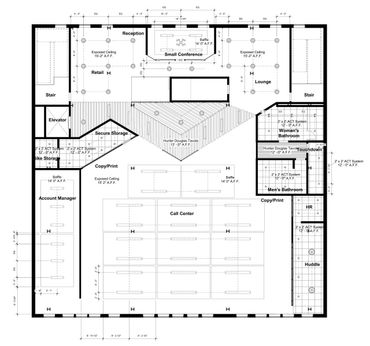
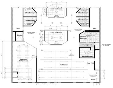
Since Warby Parker's branding is rooted in literature, my concept was derived from a poem by Shel Silverstein. This poem reflects the innovation behind the start of Warby Parker and how they wanted to break out of the norm for eyewear companies. Additionally, it has an optimistic and inquisitive tone that contributes to the work hard, play hard mentality of the company. I applied these ideas in my design by incorporating flexible work surfaces that employees can make their own and incorporating color in an upbeat way.







Final CD Set_Winter 2019 (pdf)
Download
GabbySauceda8@gmail.com
Copyright © 2018 Gabby Sauceda - All Rights Reserved.
Powered by GoDaddy